Last updated: 13 พ.ย. 2565 | 10537 จำนวนผู้เข้าชม |
ขึ้นชื่อว่าบ้านประหยัดนั้นไม่ใช่แค่พูดว่าประหยัดแล้วเวลาก่อสร้างจริงจะถูกนะครับ แต่บ้านจะก่อสร้างได้ถูกนั้นต้องเริ่มตั้งแต่การออกแบบเขียนแบบกันเลยก็ว่าได้เนื่องจากวัสดุและพื้นที่ใช้สอยเป็นตัวบ่งชี้ว่าแบบบ้านจะประหยัดหรือไม่ ซึ่งแบบบ้านหลังนี้จะมีคุณสมบัติที่ประหยัดอย่างไรผมจะเล่าให้ฟัง

เริ่มกันตั้งแต่แปลนพื้นชั้นล่างกันก่อนเลยครับ เน้นโล่งเพื่อจอดรถและสามารถทำเป็นโถงเอนกประสงค์ใช้งานได้ตามความต้องการ สามารถตอบสนองความต้องการเจ้าของบ้านได้ทุกเรื่องใช้งานไม่ว่าจะเป็นผลิตผลจากในสวน หรือการใช้งานในเมืองที่เหมาะสมมาก ชั้นล่างมีเพียงพื้นคอนกรีตและห้องน้ำที่จำเป็นต่อการใช้งานในชีวิตจริง ๆ เมื่อเกิดน้ำท่วม เราก็ไม่ต้องกังวลว่าข้าวของจะเสียหาย หรือสามารถพักผ่านชั้นล่างได้เมื่อยามน้ำลด

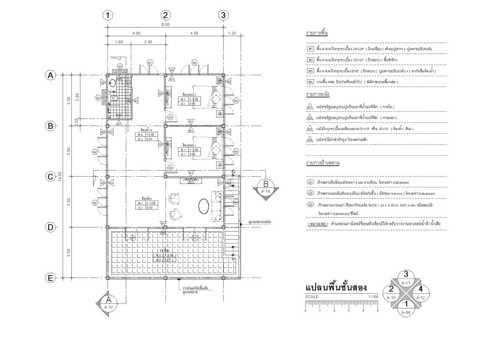
ชั้นบนเพื่อประโยชน์ใช้งานห้องครัวอยู่ชั้นล่าง และเมื่อน้ำท่วมใเราสามารถย้ายมาบนพื้นที่ชั้นบนได้ เพื่อความสะดวกสบาย ห้องครัวชั้นล่างถือได้ว่าลงตัวเป็อย่างมาก หากอยู่ในสวนก็สามารถเก็บผัก เก็บพริกมาปรุงอาหารได้อย่างสะดวกรวดเร็วไม่ต้องเดินขึ้นชั้น2 ให้เสียเวลา นอกจากว่ามีเหตุต้องย้ายขึ้นชั้น2จริง ๆอย่างเช่นน้ำท่วมขังพื้นที่ระบายน้ำไม่ทัน

รูปทรงของบ้านที่เรียบง่ายแต่ใช้งานได้ดีดูแลง่ายก่อสร้างไม่แพง แถมสวยแบบเรียบ ๆ เน้นพื้นที่ใช้สอยและต้นทุนก่อสร้างต่ำ ทรงหลังคาหมาแหงนเพราะง่ายต่อการทำงานประหยัดค่าแรงหลังคาเมทัลชีท ทำให้โครงสร้างหลังคาลดความหนาเหล็กลงได้เพราะหลังคาเบา
บันไดอยู่ด้านข้างเนื่องจากต้องการใช้พื้นที่ในบ้านได้อย่างเต็มพื้นที่ใช้สอยเพราะหากนำไว้ในบ้านเราจะเสียพื้นที่ใช้งานเป็นอย่างมาก ถึง 16 ตารางเมตรกันเลยทีเดียว

บ้านธรรมดาแต่ให้คุณค่าเรื่องการใช้งาน เหมาะสำหรับทุกพื้นที่ปลูกสร้างโดยเฉพาะเขตพื้นที่น้ำท่วม เราขอแนะนำแบบบ้านหลังนี้ให้กับทุกท่านที่ต้องการหาแบบบ้านที่ก่อสร้างตามงบประมาณจำกัดได้
9 มิ.ย. 2564
11 ก.พ. 2567