Last updated: 23 มี.ค. 2564 | 6459 จำนวนผู้เข้าชม |
แบบบ้านชั้นเดียวเกษตรพอเพียง แบบบ้านที่ทำให้ฝันของคนอยากมีบ้านเป็นจริงครบทุกฟังชั่น เป็นที่ยอมรับกันสำหรับลูกค้าที่มีงบประมาณอยู่ในมือจำนวนไม่มาก แต่ต้องการพื้นที่ใช้สอยมากเพื่อตอบสนองความต้องการอยู่อาศัยของครอบครัว เนื่องจากมีวิศวกรท่านนึงได้สร้างแล้วเสร็จในงบประมาณ 350,000 บาทสร้างเสร็จแล้วจริงที่จังหวัดปราจีนบุรี 350,000 บาทถามว่าจริงไหมนั้นเราไปดูเหตุผลกันว่าทำไมถึงทำราคาบ้านได้ต่ำขนาดนี้ได้ แนวคิดในการสร้างบ้านแบบไม่ต้องกู้ธนาคารเป็นอย่างไรทำได้จริงไหมลองดูแนวคิดของเรากัน
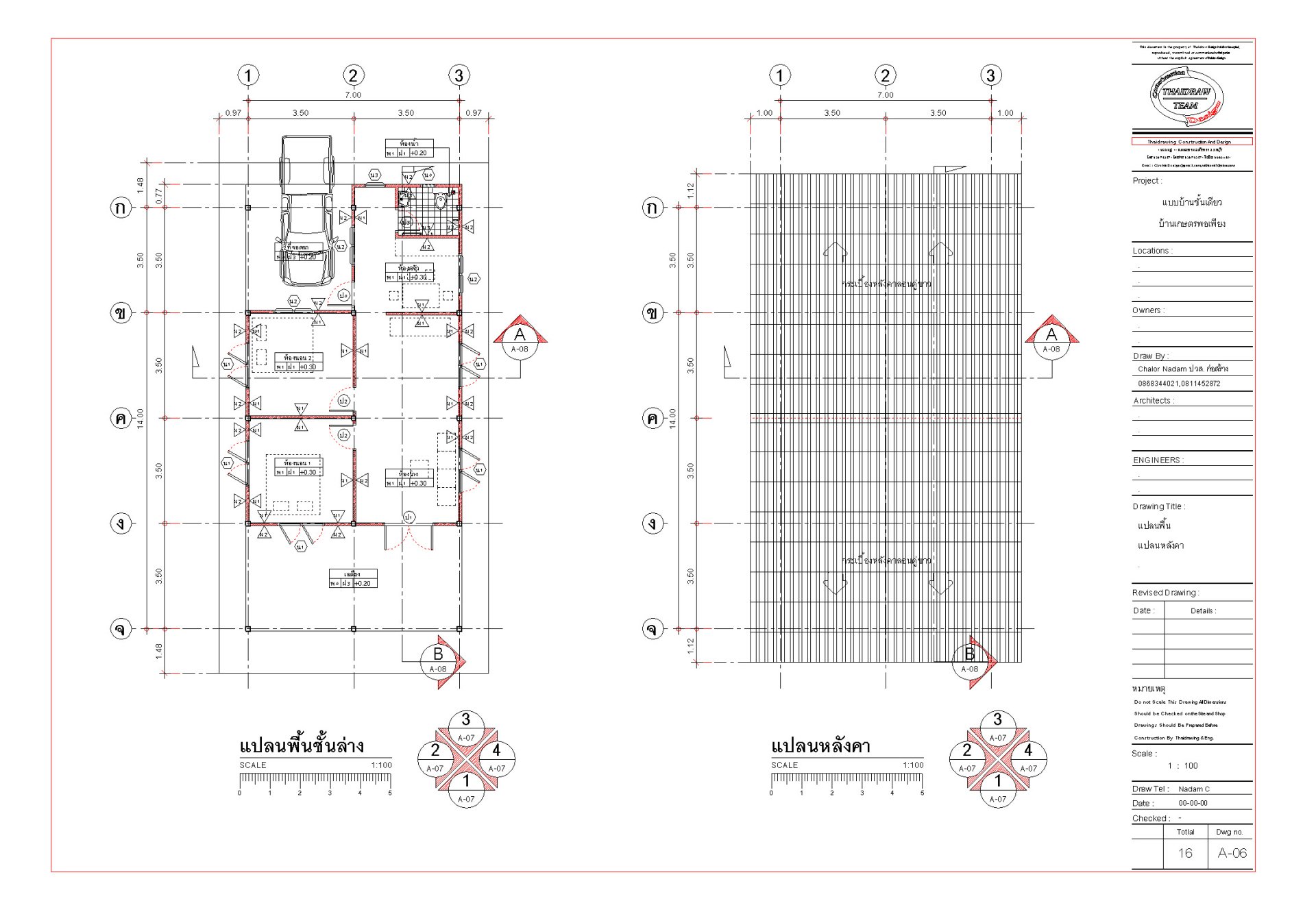
ไม่ว่าบ้านของคุณจะงบประมาณการก่อสร้างขนาดไหนสำคัญที่สุดเลยต้องมี แบบบ้าน เนื่องจากความสำคัญในการใช้งาน ขนาดพื้นที่ใช้สอยความสูงเราต้องมีแผนด้วยการทำ แบบบ้าน ขึ้นมาใครว่าไม่จำเป็นหรือไม่สำคัญมาดูเหตุผลที่ผมต้องมีแบบบ้านก่อนการก่อสร้าง
หากท่านมีแบบบ้านท่านสามารถวางผังให้ครบเลย ห้องนอน ห้องน้ำ ห้องครัว ห้องพระ ห้องเก็บของ หรือแม้กระทั่งห้องซ่อมแซมอุปกรณ์ หรือ shop เล็ก ๆ ของท่านเอง ซึ่งสำคัญมากสำหรับการดูแล ซ่อมบำรุงสิ่งของเครื่องใช้ภายในบ้าน เราสามารถเขียนผังมาให้จบแล้วเลือกทำตามงบประมาณที่เรามี ณ. ตอนนี้

เมื่อเรามั่นใจแล้วว่าแปลนบ้านที่เราต้องการ ลงตัวแบบนี้ สำคัญมากเราจะต้องไม่ปรับเปลี่ยนเพิ่มเติมระหว่างการทำงาน สำหรับแบบบ้านเกษตรพอเพียงหลังนี้เป็นแบบบ้านที่มีทางประหยัดและก่อสร้างได้จริงคือ
สร้างบนพื้นที่ดินแข็ง
ยกพื้นไม่เกิน 60 เซนติเมตร ยิ่งยกพื้นสูงยิ่งสิ้นเปลืองงบประมาณค่าใช้จ่ายในการก่อสร้าง
ระยะช่วงเสา เพื่อความแข็งแรง 3.50 ม. ด้วยช่วงคานระยะนีสามารถใช้เหล็กแกน RB9 ในการทำงานได้
พื้น เป็นพื้นวางบนดินคือไม่ใช้คานในการรับนำหนักทำให้ประหยัดโครงสร้างบ้านเป็นอย่างมาก ยกเว้นห้องน้ำเท่านั่นที่เราจะทำการเทพื้นบนคาน ก็คือการผูกเหล็กวางพื้นให้คานรับน้ำหนักและถ่ายลงเสาเพื่อป้องกันการทรุดตัวของดินซึ่งเกิดขึ้นตามธรรมชาติ
เสา หล่อในที่ คอนกรีตเสริมเหล็ก มีฐานราก ตอม่อตามหลักวิศวกรรม ผนังก่ออิฐบล็อก ไม่มีอิฐบล็อกตัวไหนที่นำมาก่อสร้างแล้วราคาต่ำเท่าอิฐบล็อกธรรมดา ๆ โบราณ ๆ ตามบ้านเราได้อีกแล้วราคา ณ. ตอนนี้ก้อนละ 5 บาทรวมส่ง
หลังคาลอนคู่ หรือเมทัลชีทแล้วแต่เจ้าของบ้านจะชอบ เพราะร้อนเหมือนกันทั้งสองแบบ แต่กระเบื้อลอนคู่จะไม่มีเสียงดังเวลาฝนตก และเพื่อช่วยให้บ้านลดความร้อนภายในลงผมจึงเพิ่มความสูงเสาหรือหลังอะเสให้มากกว่าเดิม
สำคัญมากเรื่องเสาที่่ทำให้ประหยัดเหล็กอะเสคือต้องหล่อเสาตามความสูงของอะเส เราจะไม่รัดหัวเสาก่อนแล้วทำการต่อดั้ง แต่เราจะใช้เสาหลักเป็นดั้งไปในตัวช่วยลดเหล็กโครงสร้างหลังคาได้เป็นอย่างมาก การก่ออิฐก็จะก่อไปชนแผ่นหลังคาเลย เก็บงานด้วยการฉาบติดท้องกระเบื้องหรือเมทัลชีทได้เลย
ฝ้า รอบนอกไม่ได้สำคัญอะไรเราจะไม่ใส่ แต่จะใส่ฝ้าภายในบ้านทั้งหมดเป็นฝ้า T-Bar ตรงนี้แหละประเด็นสำคัญหากเราเงินน้อยเราสามารถที่จะวางแผนการทำงานได้ และได้อยู่อาศัยบ้านของเราเอง แบบไม่ต้องกู้หนี้ยืมสินใครมาอีกด้วย
ประตู เลือกประตูบานไม้ลายสายฝนหน้าเดียว บานไม้สัก บานภายใน HDF บานที่เสี่ยงถูกน้ำก็ใช้บ้านไม้เนื้อแข็งแบบกรุไม้หน้าเดียว
หน้าต่างบานไม้ หน้าเดียว เปิดเฉพาะในจุดที่จำเป็น มีเพื่อใช้งานเพราะถึงจะมีหน้าต่างมากเพียงใดก็ต้องติดผ้าม่านวุ่นวาย มีเฉพาะแค่เปิดระเบายอากาศ
เชิงชาย ไม่ใส่ก็ได้ไม่ได้มีผลอะไรต่อการใช้งาน
ระบบไฟ เพื่อความสะดวกปลอยภัยควรร้อยท่อทุกจุด
สุขภัณฑ์ กระเบื้อง เลือกแบบประหยัดใช้งานได้จริง
17 ส.ค. 2565
18 ส.ค. 2567