Last updated: 12 ส.ค. 2566 | 12648 จำนวนผู้เข้าชม |
 
                    ที่ดินหน้าแคบแต่ต้องการสร้างบ้านต้องทำอย่างไรกับแบบบ้าน ? เขียนแบบอย่างไร ให้แบบบ้านสามารถขออนุญาตผ่าน โดยไม่ต้องแก้ไขหรือถูกตีเอกสารกลับ ซึ่งหลายคนเจอปัญหานี้กับบ้านที่จะสร้างบนที่ดินแคบ ซึ่งผมจะยกตัวอย่างแบบบ้านหลังนี้ ที่ต้องการสร้างบนเนื้่อที่ดินจำกัด

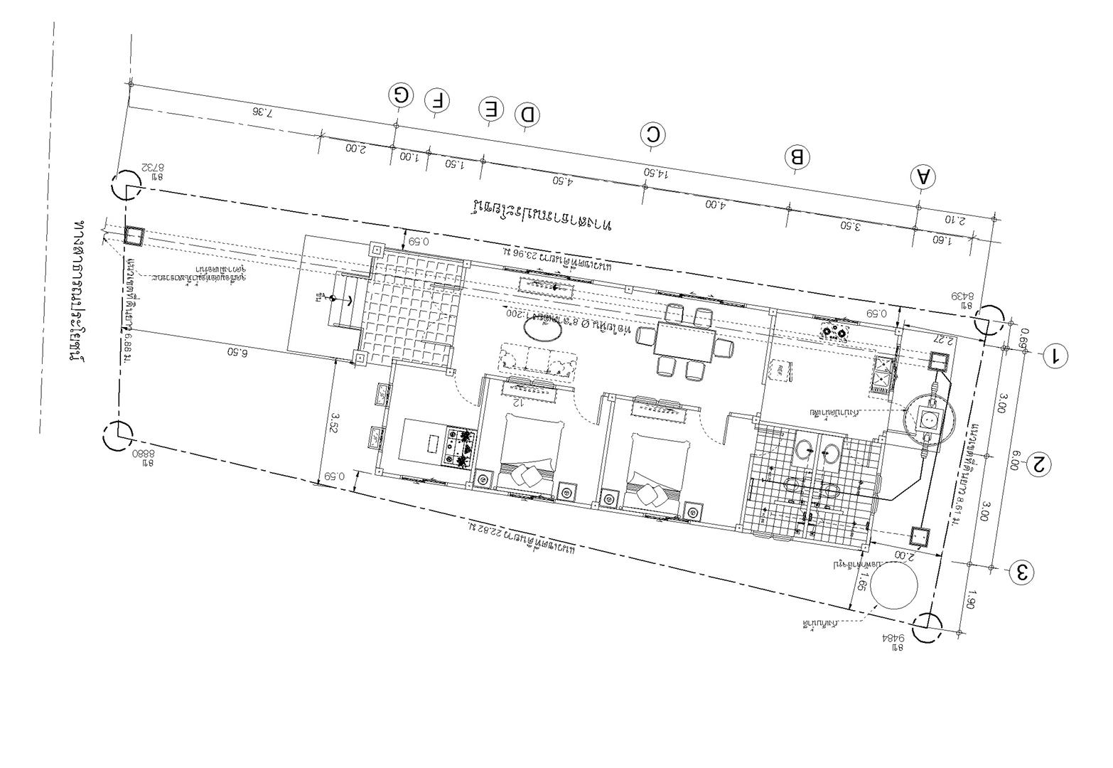
จากแปลนที่เห็นนี้ เมื่อยื่นขออนุญาตปลูกสร้างไป เอกสารจะถูกตีกลับในทันทีเนื่องจากว่า การสร้างบ้านบนเนื้อที่ดินแคบมีข้อกำหนดดังนี้

รูปนี้แสดงถึงแปลนบ้านที่ถูกต้อง ลักษณะคือด้านข้างปิดทึบทั้งหมด มีช่องเปิดหน้าบ้นกับหลังบ้านที่ระบายอากาศจากตัวบ้านได้ ดังนั้นท่านจะเห็นว่า ผนังห้องที่อยู่หน้าบ้านและหลังบ้านสามารถทำช่องเปิดได้ และห้องน้ำหมายเลข 3 ต้องมีการระบายอากาศที่หลังคาด้วยพัดลมดูดอากาศ
ห้องนอน ทั้ง2ห้องระบายอากาศด้วยบานเกล็ดปรับมุม 2บานคู่เนื่องจากบานเกล็ดนั้นระบายอากาศได้ 100%
 dเรื่องข้อกำหนดต่าง ๆ นั้น เป็นข้อกำหนดที่ช่วยรักษาชีวิตของผู้อยู่อาศัย หากท่านเข้าในเรื่องการระบายอากาศ ที่เห็นได้ชัดคือห้องนอน หากไม่มีช่องระบายอากาศและฝ้าเป็นฝ้าแบบฉาบเรียบแล้ว เวลานอนปิดประตูท่านจะหายใจไม่ออกขั้นช๊อกแบบไม่ทราบสาเหตุเลยก็ว่าได้เนื่องจากขาดอากาศหายใจ ดังนั้นเพื่อความปลอดภัยต้องเปิดประตูนอน
dเรื่องข้อกำหนดต่าง ๆ นั้น เป็นข้อกำหนดที่ช่วยรักษาชีวิตของผู้อยู่อาศัย หากท่านเข้าในเรื่องการระบายอากาศ ที่เห็นได้ชัดคือห้องนอน หากไม่มีช่องระบายอากาศและฝ้าเป็นฝ้าแบบฉาบเรียบแล้ว เวลานอนปิดประตูท่านจะหายใจไม่ออกขั้นช๊อกแบบไม่ทราบสาเหตุเลยก็ว่าได้เนื่องจากขาดอากาศหายใจ ดังนั้นเพื่อความปลอดภัยต้องเปิดประตูนอน 
แต่หากท่านใส่บานเกล็ดปรับมุมไว้ก็สามารถปิดประตูนอนได้ เรื่องนี้ไม่ใช่เรื่องที่แต่งขึ้นมาเองแต่มีผู้ประสพภัยเกี่ยวกับเรื่องนี้มาแล้วทั้งนั้น

ข้อแนะนำการเขียนแบบ :
หากท่านต้องการแบบบ้านที่มีทั้งแบบขออนุญาตและแบบปลูกสร้าง ท่านจำเป็นต้องทำแบบ 2 ชุด
คนส่วนใหญ่หรืองานโครงการต่าง ๆ เพื่ออนุญาตแล้ว แบบถูกต้องขออนุญาตผ่านก็ทำการก่อสร้าง หลังจากส่งมอบบ้านให้ลูกค้าแล้ว แต่ละหลังก็ต่อเปิดปิดด้านหลังบ้านข้างบ้านกันหมดเนื่องจากกลัวขโมยซึ่งไม่สามารถควบคุมพฤติกรรมของผู้อยู่อาศัยได้

 ด้วยช่องว่างตรงนี้เราจึงต้องมีแบบ 2 ชุดคือ 
1.แบบขออนุญาตสำหรับขอแค่ผ่าน
2.แบบสำหรับปลูกสร้างเมื่อขออนุญาตแล้วก็ปลูกสร้างตามแบบชุดนี้
ตามหลักกฎหมายต่าง ๆ แล้วผมสนับสนุนให้ทำตามข้อกำหนดว่าด้วย พรบ.ควบคุมอาคารเพื่อความปลอดภัยในชีวิตและทรัพย์สินของท่านเองครับ
17 ส.ค. 2565
20 มี.ค. 2564