Last updated: 12 ม.ค. 2567 | 11494 จำนวนผู้เข้าชม |
บ้านไม้ยกพื้นสูงชั้นเดียวใต้ถุนสามารถนอนพักผ่อนได้ภายใต้หลังคาและพื้นไม้ร่มเย็น ความต้องการที่หลากหลายของลูกค้านำมาซึ่งแบบบ้านโดนใจ เป็นอีกหนึ่งแบบที่ให้ความรู้สึกว่าเหมือนอยู่กับธรรมชาติบ้านเราซึ่งบ้านหลังนี้สร้างขึ้นที่กำแพงเพชร

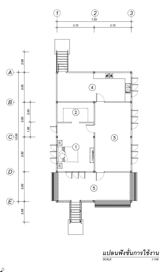
เป็นบ้านไม้ชั้นเดียวขนาดกว้าง 7.5 เมตรลึก 13 เมตร ทรงหลังคาจั่ว ที่เข้ากับธรรมชาติ ซึ่งการเขียนแบบนั้นได้นำความต้องการของลูกค้ามาประกอบการเขียน 90% เพราะเราทำตามลูกค้าต้องการ มีขั้นตอนงานให้ลูกค้าได้ดูได้แก้ไขตลอดการทำงานขึ้นพื้นฐาน โดยขั้นตอนแรกนั้นจะพูดคุยกันเรื่องแปลนบ้านก่อน การร่างแปลนบ้านตามความต้องการของลูกค้าครั้งแรกจะถูกส่งให้ลูกค้าได้ดูเมื่อลูกค้ายังรู้สึกว่าไม่ตรงตามความต้องการแล้วนั้น ลูกค้าสามารถคอมเมนท์ได้ในทันที จนกว่าขนาดและฟังชั่นของตัวบ้านจะตรงความต้องการ
เมื่อฟั่งชั่นแปลนต่าง ๆ ตรงตามความต้องการแล้วก็เข้าสูขั้นตอนการเขียนแบบ 3 มิติใส่ขนาดรูปทรงประตูและหน้าต่าง หลังจากนั้นก็ส่งให้ลูกค้าดูหากยังไม่ถูกใจต้องการปรับประตูหน้าต่างหรือหลังคา ลูกค้าก็สามารถสั่งปรับแก้ไขได้

ขั้นตอนของเราถือเป็นขั้นตอนมาตรฐานการทำงานที่ถูกต้องและตรงกับความต้องการของลูกค้า และเมื่อจบงาน 3 มิติแล้วลูกค้าไม่สามารถย้อนกลับไปแก้ไขอะไรได้อีก นอกจากสัญญาว่าจ้างกันใหม่ เป็นข้อตกลงที่ไม่มีใครได้เปรียบหรือเสียเปรียบ แต่เป็นความยุติธรรมทั้ง 2 ฝ่าย

สำหรับบ้านหลังนี้เสาที่สำผัสกับพื้นดินนั้นจะเป็นเสาสำเร็จรูปที่คงทนต่อสภาพอากาศในเมืองไทยเราเป็นอย่างยิ่งต่อเสาไม้ชั้นบนเพื่อหนีปัญหาเรื่องปลวกเรื่องแมลง ถามว่าทำไมไม่ทำบ้านปูน ก็ต้องตอบว่าเป็นความต้องการของลูกค้าทั้งหมดเนื่องจากลูกค้ามีไม้อยู่แล้วก็เลยอยากได้บ้านไม้ เพราะยังรักและชอบความเป็นธรรมชาติอยู่ ไม่มีห้องน้ำเนื่องจากเจ้าของบ้านมีห้องน้ำด้านล่างอยู่แล้ว ถามว่าตอนกลางคืนไม่ลำบากเวลาอยากจะทำธุระประจำหรือ ก็ต้องบอกความฟังชั่นการใช้งานเลยว่าไม่สะดวกอย่างแน่นอน หากเป็นผมหากไม่มีห้องน้ำนั้นเราเสามารถเพิ่มโถปัสสาวะไว้สักโถนึงแต่ก็เป็นอุปสรรคกับผู้หญิง ดังนั้นควรมีโถส้มสักโถไว้ปัสสาวะเพื่อจะได้เวลากลางคืนจะได้สะดวกสบาย มีโถส้วมแต่เอาไว้ใช้ปัสสาวะอย่างเดียวก็ได้ แต่ยุคสมัยได้เปลี่ยนไปมาก สมัยมีแบบโถเก็บปัสสาวะเคลื่อนที่ได้ ตอนเช้าค่อยนำไปทิ้ง เห็นไหมว่าการคิดมีหลายอย่างมีหลายแง่มุม เพราะฉะนั้นความต้องการของลูกค้าอาจไม่ตรงความคิดของทุกคนได้แต่ก็มีจุดประสงค์เดียวกันด้วยเทคโนโลยีสมัยใหม่ทำให้เราคิดแบบไม่จำเป็นต้องมีพื้นฐานการใช้งานมากนักเพราะทุกอย่างแก้ได้หน้างานจริง ๆ

เพื่อลดเสียงดังหลังคาจึงเป็นลอนคู่มุงแผ่นสะท้อนความร้อนเพื่อลดความร้อนลง ด้านหลังบ้านเป็นห้องครัว แบบครัวไทย เปิดแต่ไม่โล่งเนื่องจากยุคสมัยเปลี่ยน ขโมยก็เยอะเพราะฉะนั้นพื้นฐานที่เราต้องคิดคือความปลอดภัยของเจ้าของบ้านเป็นหลักนั่นเอง ถึงจะเป็นบ้านไม้แต่ความปลอดภัยของคนในครอบครัวต้องมาก่อนเสมอ
ความเรียบง่ายของคนไม่เหมือนกัน เป็นไปตามความพอเพียงของตนเองที่มีอยู่ ณ.ปัจจุบันเราอยู่อย่างไรก็ได้ สุดท้ายก็ตายเหมือนกันแต่ประเด็นคือเราจะได้อยู่บ้านก็ต่อเมื่อเราคิดให้อยู่ในกรอบอยู่ในพื้นฐานของตัวเราไม่ว่าจะเป็นแหล่งที่มาของทุน สภาพแวดล้อมต่าง ๆ อย่าลืมว่าคนอื่นรวยแต่ไม่ได้หยิบยื่นให้เรากิน เราหาได้ตามกำลังของเรา เราก็เดินตามวิถีพอเพียงของตนเอง ไม่ไปเปรียบเทียบใครชีวิตเราก็พบกับความสุขได้ ทำงานเหน็ดเหนื่อยทั้งปีทั้งชาติสุดท้ายความว่าได้ดีก็ไม่ได้มีประโยชน์อะไร ตายไวอีกต่างหาก คนเป็นสัตว์ประเสริฐ ฉลาด หลักแหลม แต่มีอยู่อย่างนึงที่เราแตกต่างจากสัตว์ทั่วไปคือ เราใช้ชีวิตแบบลำบาก ทำงานทั้งวันทั้งคืน ต่างจาก หมู หมาแมว สัตว์พวกนี้ กินแค่อิ่มจากนั้นใช้เวลาที่เหลือนอน